à partir de €/mois
pièces
chambres
habitables
Appartement Franconville 3 pièces - Balcon exposé Sud-Ouest - Place de parking
EN EXCLUSIVITÉ DANS VOTRE AGENCE NESTENN FRANCONVILLE !
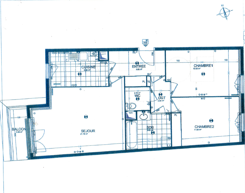
Dans une résidence récente et sécurisée de 2013, découvrez ce bel appartement F3 de 68 m² situé au 1er étage avec ascenseur, alliant confort et praticité.
L'entrée dispose d'un placard intégré, idéal pour optimiser le rangement. Le séjour lumineux s'ouvre sur un balcon exposé Sud-Ouest, donnant sur l'intérieur calme de la copropriété, un espace parfait pour profiter de moments de détente à l'extérieur.
La cuisine, indépendante, peut être conservée telle quelle ou facilement ouverte sur le séjour pour créer un espace de vie plus convivial et moderne.
Le coin nuit comprend deux chambres avec placards intégrés, une salle de bains fonctionnelle et des WC séparés, offrant confort et praticité au quotidien.
Une place de parking en sous-sol complète ce bien, sécurisé et pratique.
Cet appartement séduit par son agencement, ses espaces optimisés et sa situation calme, dans une résidence entretenue. Il représente une opportunité idéale pour un premier achat, un couple à la recherche de confort ou un investisseur.
Un logement prêt à accueillir ses nouveaux occupants dans un cadre agréable et sécurisé.
Classe énergie C.
Honoraires d'agence à la charge vendeur.
Achat, vente, location, gestion, contactez votre agence NESTENN FRANCONVILLE au 01 34 44 12 12.
Caractéristiques et informations
3 pièces
2 chambres
69 m² habitables
1er / 4 étages
Année de construction : 2013
Construction : 2013
Energie et diagnostics
Localisation
Je simule mon prêt
€
€
ans
€
par mois
Dont assurance : € / mois
Frais de notaire (8%) : €
Taux moyen constaté %
Un crédit vous engage et doit être remboursé. Vérifiez vos capacités de remboursement avant de vous engager.
* Cette mention est donnée à titre d'information éditoriale sur la base du baromètre des taux d'API Financement(1) pour un prêt immobilier de € sur une durée de 25 ans. Soit 300 mensualités de € au taux de % hors assurance et € d'assurance par mois (100% du capital emprunté au titre du décès, invalidité, perte totale irréversible d'autonomie et incapacité temporaire de travail). Aucun versement, de quelle que nature que ce soit, ne peut être exigé d'un particulier, avant l'obtention d'un ou plusieurs prêts d'argent. Pour tout prêt immobilier, l'emprunteur dispose d'un délai de réflexion de 10 jours. L'achat est subordonné à l'obtention du prêt : s'il n'est pas obtenu, le vendeur doit lui rembourser les sommes versées.
(1) Simulation proposée par API Financement - En savoir plus
Procédure : Pas de procédure en cours
Charges annuelles : 1 900,00 €
Nombre de Lots : 231
DPE : C 88 KwhEp/m2.an
GES : C 16 KgCO2/m2.an
Montant estimé des dépenses annuelles d'énergie pour un usage standard entre 570.00 € et 810.00 € (abonnement compris).
Taxe foncière : 1 703.00 €
* Les honoraires d'agence seront intégralement à la charge du vendeur.
86 Rue Du Général Leclerc, 95130 Franconville
Vous souhaitez faire une visite ou poser une question ? Contactez-nous !











